Skip to main content
Skip to footer
+49 (0) 40 42 92 92 0
EN
DE
About us
The company
Sustainability
Services
Offshore wind energy
Building construction and civil engineering
References
Offshore wind energy
Building construction and civil engineering
Latest news
Careers
About us
The company
Sustainability
Services
Offshore wind energy
Building construction and civil engineering
References
Offshore wind energy
Building construction and civil engineering
Latest news
Career
Contact us
Telephone
e-mail
EN
DE
Contact us
Schlagwort:
Structural Engineering
Lindner Boardinghouse
03.03.2025
Conversion of a historic building from 1905 into a modern boarding house, complemented by a new extension.
New Construction of THW Vehicle Depot
03.03.2025
Construction of a steel hall with PV system and green roof using efficient 3D structural analysis.
Eppendorf-AG-H12
03.03.2025
New construction of a three-story office building in reinforced concrete with a large clear span over an access road, founded…
New Production Building (Hall 9)
03.03.2025
New construction of a production hall with cleanroom facilities for medical technology equipment.
Construction of a new production building (Hall 10)
03.03.2025
New construction of a production hall with clean room in solid and prefabricated construction on a reinforced concrete base.
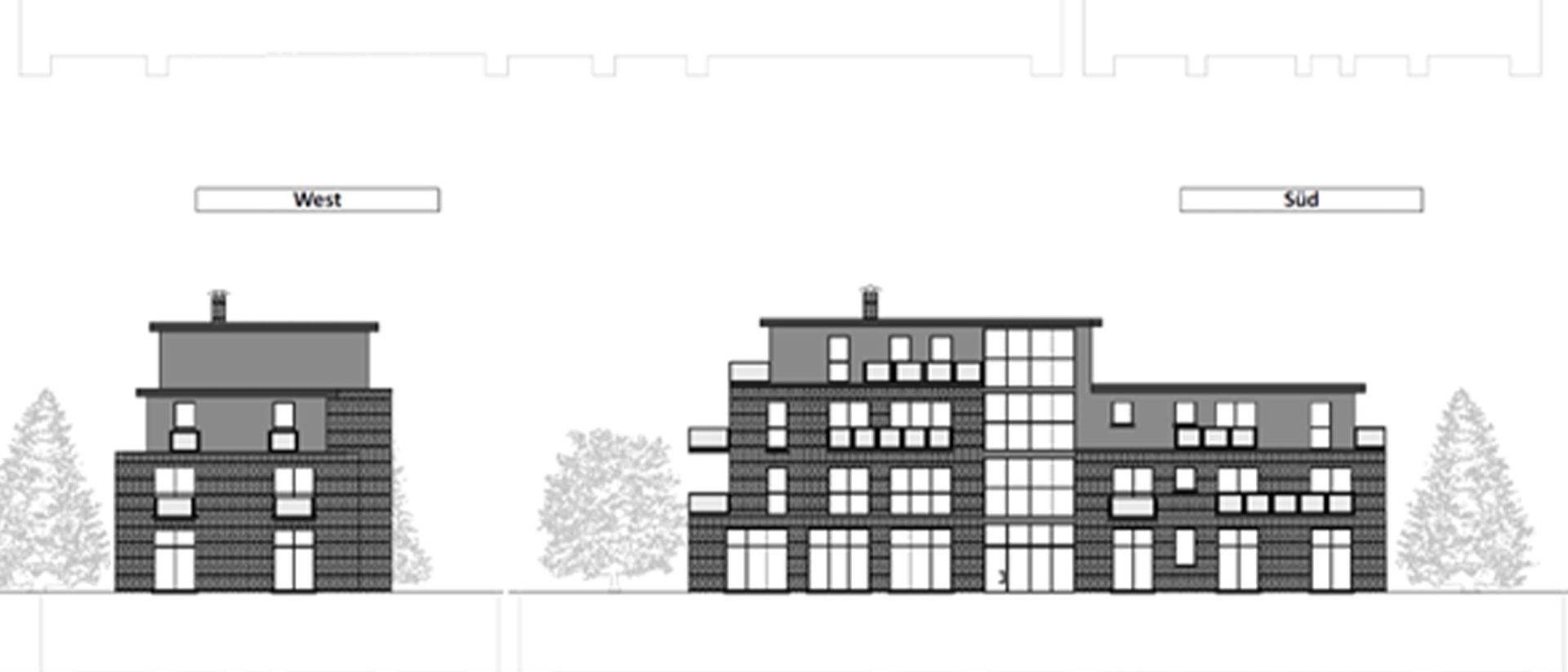
New Construction Kara Hauptstraße 46
03.03.2025
New construction of a mixed-use commercial and residential building with underground parking, built using reinforced concrete and a white tank…
LED New West Campus Building
03.03.2025
Construction of a three-story office building in reinforced concrete, featuring pile foundations and an L-shaped footprint.
New Daycare Center in Harkshörn
03.03.2025
A new daycare center with large clear-span rooms was built using a conventional, cost-optimized construction method.
Revitalization of Former Industrial Building
03.03.2025
This project involved the revitalization of a former Siemens AG industrial building, originally constructed during the Gründerzeit era.
New Television Studio with Broadcast and Production Facilities, Hamburg
03.03.2025
←
1
2
3
→
Structural Engineering